空间 | VIS | 插画 | 摄影 | 营销
搜罗世界上最具创意的餐饮
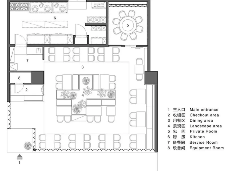
厌倦了都市的喧嚣,就想找一处优雅惬意的环境,把生活的烦恼抛诸九霄云外私房菜饭店设计装修,让工作的压力得以宣泄,享受着宁静的氛围,点上几式精心制作的菜肴,岂不美哉?“种春风”私房菜餐厅位于北京市朝阳区大悦城7层,充满设计氛围的就餐环境,让人疲惫的心灵都得到了释放。
“种春风”私房菜餐厅· 北京
场地处于商场最南端私房菜饭店设计装修,空间相对隐蔽,走廊周边装饰是传统的徽派建筑风格,东方文化和植物世界的精华,有着不尽相同的古典美,形成和谐的入口空间。
自然光照亮下方中岛景观池,景观池内有绿植、石头、小石子等自然元素,中国传统建筑“符号化”显著。餐桌有机镶嵌于中岛营造自然光下的用餐体验,
木质元素是朴实的本色美,碎石装饰,让人无形感受到空间的转换而产生敬畏之心。
部采光井字格微微向上提升一定高度四周会形成四个倾斜面做为“屋檐”,下方四周设置坐区,营造庭院中、“屋檐”下的用餐氛围。
空间摒弃繁琐的装饰,注重自然、静寂、清雅的精神特质。展现了一种古今结合的禅意韵味。
室内灯光不算明亮,弯曲的吊灯重点聚焦餐桌,空间幽暗、神秘,沉浸式体验很强。
热弯玻璃外立面无需任何华丽的装饰,有的线条柔和优美,有的线条粗犷有力,富有节奏感。
低饱和的色彩让空间的层次丰富又耐看,方正细腻的桌椅线条构成新的体块,增加了每个独立小空间的私密性。
以中国传统建筑美学私房菜饭店设计装修,解读当下“精致、健康、治愈”的生活与消费需求,呈现品质化场景化的精致体验餐厅。
做餐饮没有捷径
除了学习和努力
剩下的交给天意
来源:餐饮视界,设计:力场(北京)建筑 安兆学,图:图派摄影,编辑:餐谋长品牌策划/
今日话题
#你们喜欢这家店的设计吗?#
这里是餐饮老板找方向的地方
这里也是设计师找灵感的平台
平台投稿请咨询
《总编个人微信》














