今天分享的案例是位于成都的咖啡店。本案的特点是更多的空间给到面包区,后厨的操作区、烘培区与打包区一气呵成,让客人能同时享受到美味的咖啡与面包。
The stamp II store aims to a and space, where can rest and to the owner’s . The on more space for the bread area, the , , and areas in the . This way, can enjoy and bread at the same time.
项目概览
咖啡区面积不大,但不会使人感到压抑,良好的采光与门头玻璃的采用,使室内空间自然延伸到室外空间。
店面概览
门头细部
整体空间干净整洁,正是源于不同材质的合理穿插与使用。墙面采用石材大小各不相同,错落拼接,增添了更多的设计感。此外咖啡吧台后墙做了木质框架结构外加pvc塑料磨砂板,在保证整体空间简洁感的同时还增加了体块感。
the space is clean and tidy, while still a sense of . This is the and usage of , such as lime stone, cave stone, and stone tiles.The lime stone wall, with its sizes and , adds an of . , the with PVC the bar a sleek while depth to the space.
由入口看向室内
吧台
吧台与背景墙细部
设计师用材料的叠加与穿插不断丰盈空间。值得一提的是,门头的橱窗与后厨门都选择了做玻璃竖拼,在此基础上,门头的橱窗加了竖片玻璃片,与整体构成t形结构,更具造型感。
We have the space by and . It is worth that both the and the rear door glass , and the of glass to form a T- , to its .
门头的橱窗加了竖片玻璃片
为了店拥有更强的社区属性,设计师设置了可拆卸灯带的枫木长桌,同时满足办公人群与以家庭为单位客人的需求。
Since the stamp II store has a , we have LED on maple wood long , to both and as a group.
枫木长桌
玻璃圆桌
可拆卸灯带与无线充电功能
桌椅细部
游客即可在此小憩,亦可把此地当作“避难所”。随夏风慢下来咖啡厅店面平面设计图,与咖啡相伴咖啡厅店面平面设计图咖啡厅店面平面设计图,览阅几章好文。
can take a break here or think of it as their “.” With the of and the of , they can enjoy a few good . Stamp II store is a touch of green in the , clean and , a to , and a for the of life.
看向后厨区域
细部
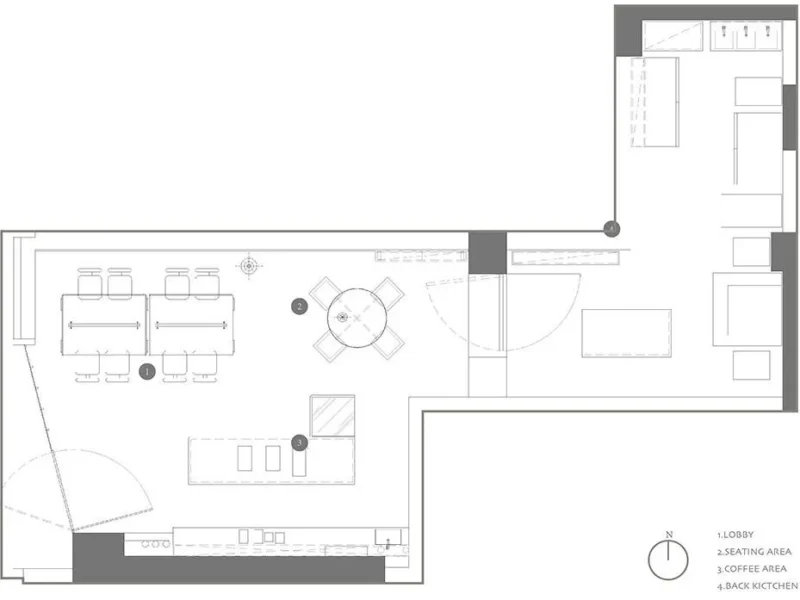
平面图
项目名称:stamp cafe II
项目类型:餐饮空间设计
完成年份:2023
建筑面积:72㎡
材料:莱姆石、石材砖、洞石

















